HOME
アルアートについて
ABOUT ARART
実積
ACHIEVEMETS
ドクターサポート
Dr.SUPPORT
開業Q&A
PRACTICE Q&A
お問い合わせ
CONTACT US
おすすめ
物件紹介
アルカ土山医療ビル(戸建て案件)
所在地:
兵庫県加古郡播磨町北野添
専用駐車場76台完備
内科・耳鼻咽喉科が盛業中
駐車場76台完備
内科・耳鼻科が盛業中
視認性抜群
ドラッグストア併設
募集科目
在宅診療所
戸建て案件
居抜き案件、ローコスト開業が可能。
物件概要
物件名
アルカ土山医療ビル(戸建て案件)
所在地
〒675-0158
兵庫県加古郡播磨町北野添
最寄駅
JR土山駅
構造・規模
木造
完成時期
2015年6月
設備・その他
在宅診療所を募集しています。賃料は駐車場込みのお値段です。
引渡条件
即時
募集区画
面積
賃料(税別)
共益費・管理費(税別)
敷金
戸建て区画
約28坪
196,000円
なし
なし
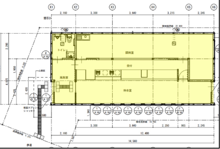
見取り図
MAP
物件情報・開業に関するご相談はこちらから
税理士による無料個別相談
0120-605-503
受付時間
平日/9:00〜18:00
土曜/9:00〜17:30
お問い合わせフォームへ
0120-605-503